Villa Rietgors

v.a. € 1.795.000

Modern en strak met een landelijke touch

Villa Rietgors is een op maat ontworpen, riet gedekte, landelijk, moderne villa. De houten accenten, het verticale lijnenspel en de grote raampartijen geven de woning een warme en eigentijdse uitstraling.

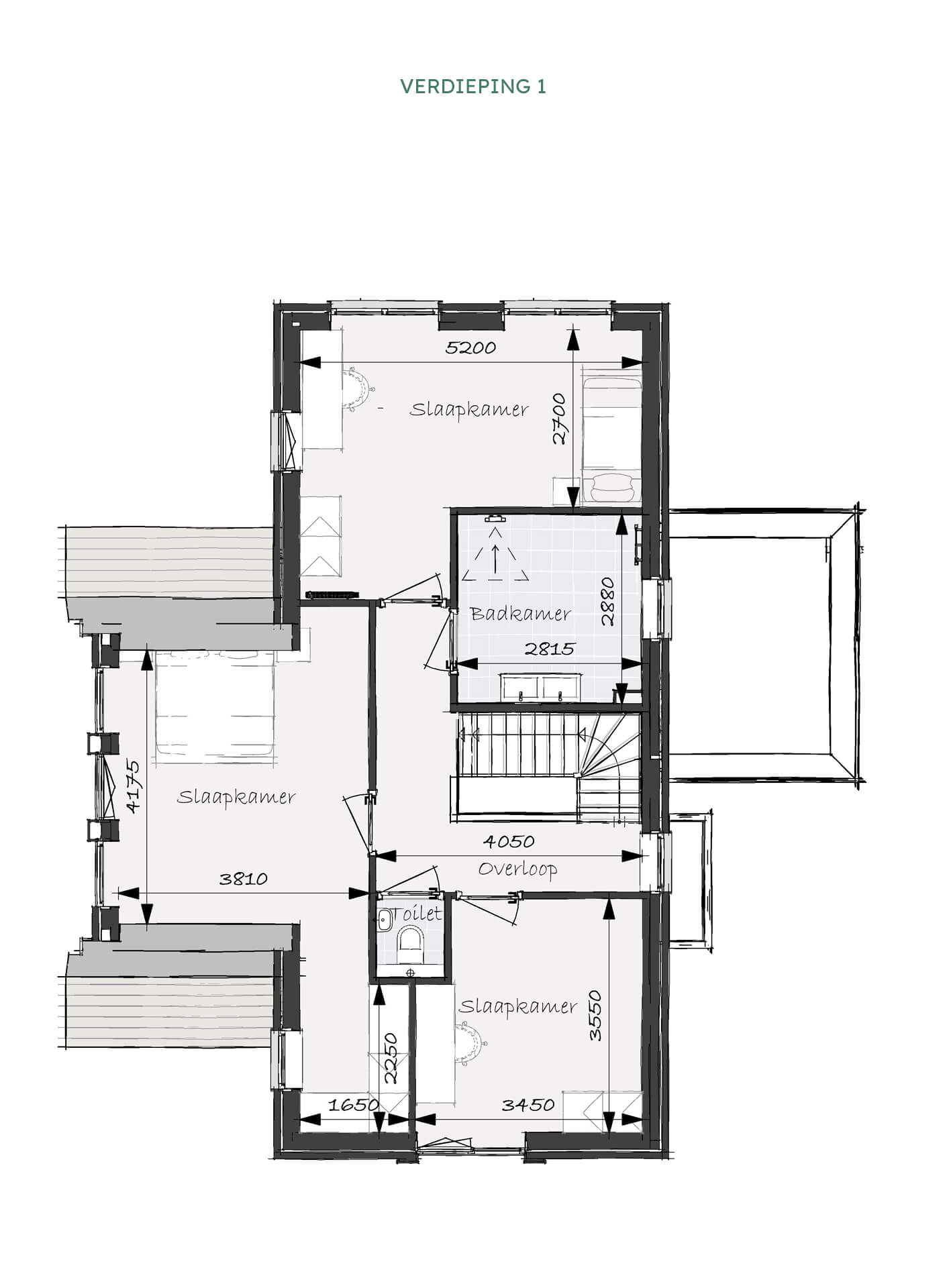
De woonruimtes op de begane grond zijn tuingericht. De werkkamer is vanuit de hal toegankelijk. De hoofdslaapkamer op de eerste verdieping heeft een open plafond tot in de nok van bijna 4 meter hoog en ruimte voor een inloopkast. Op de eerste en tweede verdieping bevinden zich nog vier slaapkamers en twee badkamers.

Villa Rietgors

Kavelnummer 2

Kavelopp. totaal
711 m²
Kavelopp. grond
602 m²
Kavelopp. mandelig terrein
109 m²
Inhoud villa
779 m³
GBO Totaal
190 m³
GBO Begane grond
88 m²
GBO 1e verdieping
70 m³
GBO 2e verdieping
32 m³

Ruime keuze aan opties

Natuurlijk kun je ook Villa Rietgors qua indeling en opties aanpassen aan jouw specifieke woonwensen. Ga met ontwerper Marco Bakkers aan tafel om jouw persoonlijke woonideeën te laten verwerken in het ontwerp.

Downloads

Park Breloft kavelpaspoort
Kavelpaspoort Park Breloft

Download

Park Breloft planning
Planning Park Breloft

Download

Park Breloft prijslijst
Prijslijst Park Breloft

Download

Park Breloft TO kavel
Technische omschrijving Kavel Park Breloft

Download

Park Breloft TO woning
Technische omschrijving Woning Park Breloft

Download

Park Breloft verkoopbrochure
Verkoopbrochure Park Breloft

Download

Park Breloft procedure
Verkoopprocedure Park Breloft

Download

Park Breloft verkooptekeningen
Verkooptekeningen Park Breloft

Download

Bonnike Makelaardij
Bonnike Makelaardij

Meer weten? Stel je vraag en wij helpen je verder.

Bonnike Makelaardij

De Grent 8
2202 EK Noordwijk

Stuur ons een bericht
Bel ons 071 - 361 93 65